Verkehrsberuhigte Straßen

Neubauquartier Berlin-Düppel (Himbeersteig u.a.)

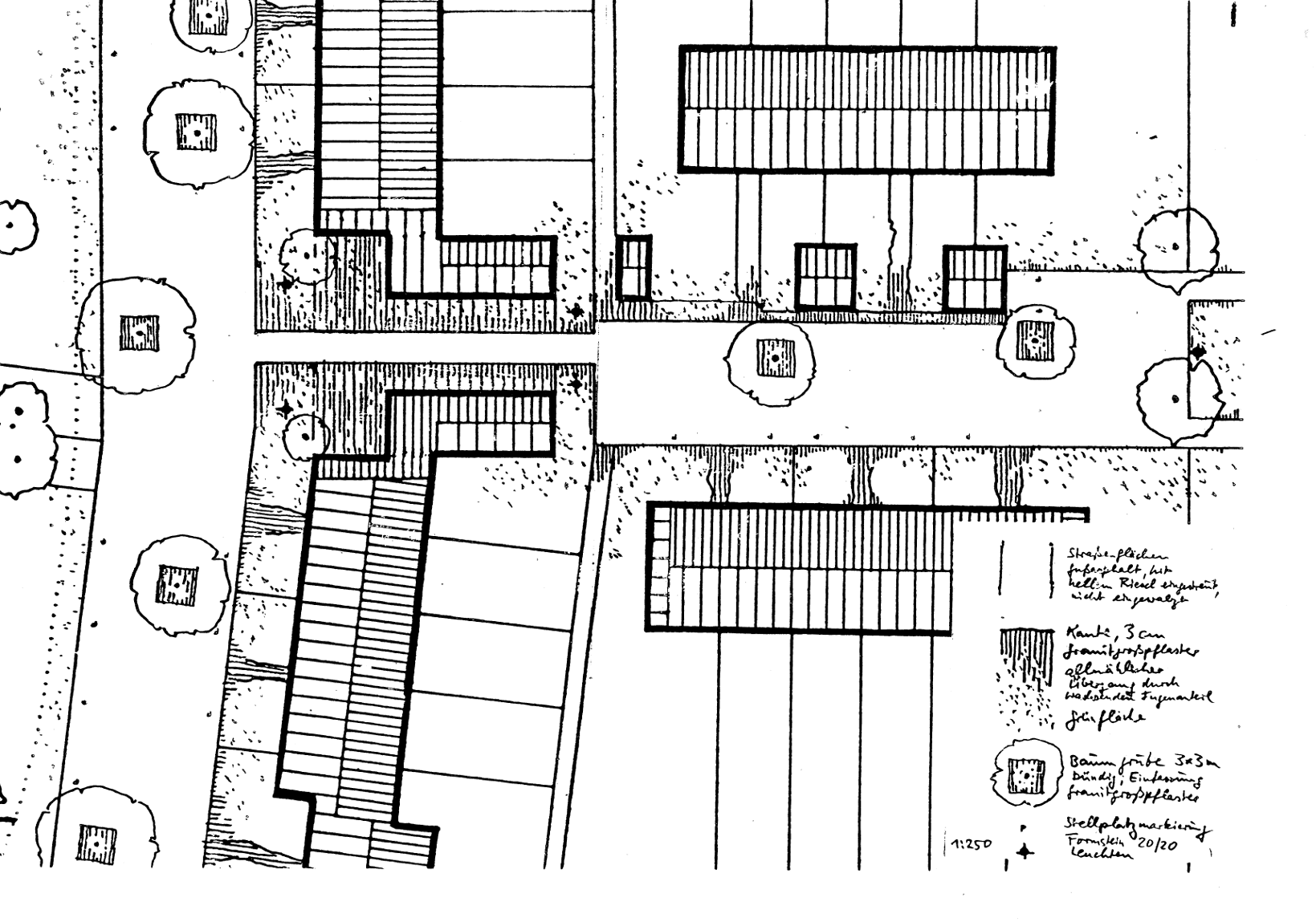
Ein streng geometrischer städtebaulicher Entwurf für ein Neubauquartier aus Reihenhäusern und Geschosswohnungsbau wurde von Anfang an gemeinsam mit entsprechend geometrisch konzipierten verkehrsberuhigten Wohnstraßen entworfen und realisiert. Der dazu komplementär unregelmäßige alte Baumbestand in den Straßenflächen wurde durch neue Bäume ergänzt. So verhindert er Schnellfahren - aber nicht als Hindernisstrecke für Autos, sondern als selbstverständliches unaufdringliches Wohnumfeld. (Gemeinsam mit Architekten Müller/Rhode und Bezirk Zehlendorf)

Verkehrsberuhigte Straßen Berlin-Düppel | Entwurfsplan mit Baumbestand | PDF | 156 KB
Verkehrsberuhigte Straßen Berlin-Düppel | Entwurfsplan Ausschnitt | PNG | 700 KB
Verkehrsberuhigte Straßen Berlin-Düppel | Modellfoto | PDF | 114 KB
Verkehrsberuhigte Straßen Berlin-Düppel | Perspektivskizze I | PDF | 209 KB
Verkehrsberuhigte Straßen Berlin-Düppel | Perspektivskizze II | PDF | 190 KB
Verkehrsberuhigte Straßen Berlin-Düppel | Fotos nach Umbau | HTML
Verkehrsberuhigte Straßen Berlin-Düppel | Fotos 2005 | HTML