Automatische Sammelgaragen

Mehr Chancen durch städtebauliche und technische Anpassung

Hans-Henning von Winning , Hans-Christian Lied
veröffentlicht in: der städtetag 2/1999, S.75-77

Mechanische Parkierungssysteme haben viele Vorteile - da verwundert die noch immer seltene Anwendung. Ein Grund ist sicherlich der Zwang zu Billigstlösungen für das Parken generell, verursacht durch staatliches Kostendumping. Zusätzlich aber verspielen gerade die automatischen Anlagen häufig ohne Not ihre Vorteile: Bereits geringe Modifizierungen bei Standortwahl und Umfeldgestaltung sowie Anpassungen von innerer Organisation und Technik würden Funktion, Wirtschaftlichkeit und Akzeptanz deutlich verbessern; dazu sollen die folgenden Anregungen dienen.

Urbane Standorte für 100 - 500 Pkw nahe an Hauptverkehrsstraßen

Automatische Sammelgaragen sind aufwendig, sparen aber Bauvolumen- je nach Konzeption mehr als die Hälfte einer konventionellen Garage. Diese Ersparnis ist nur in dichten Stadtbereichen mit knappen Freiflächen und geringem Stellplatzangebot sinnvoll. Nur dort rentieren sie sich auch finanziell: Bei hohen Grundstücks- und Mietpreisen lohnen sich zusätzliche Möglichkeiten  zum Bau von Wohnungen, Läden und Büros. Unterirdisch wächst die Rentierlichkeit der Kubatureinsparung mit den höheren Baukosten in größerer Tiefe.

Wie die Dichte, ist auch die funktionale Mischung städtebauliche Voraussetzung für den wirtschaftlichen Betrieb: Nur die Mischung verschiedenster Nutzer - Bewohner,  Beschäftigte,  Besucher, Kunden usw. - sorgt für eine hohe Auslastung der Anlagen über Tag, Woche und Jahr und vermeidet hohe Abfertigungsspitzen, die unverträglich große Übergabestationen erforderlich machen würden.

Die Mischnutzung ist aber nicht nur Voraussetzung, sondern auch besonderes “Talent” automatischer Sammelgaragen: Anders als bei konventionellen Sammelgaragen, die wegen wachsender Kriminalität zunehmend gemieden werden oder nur für geschlossene Nutzergruppen reserviert werden, gibt es bei der gemeinsamen wechselweisen Nutzung automatischer Garagen durch Kunden, Besucher, Pendler und Anwohner keine Unverträglichkeiten. 

Verkehrsplanerisch ist die Zu-und Abfahrt an oder nahe einer Hauptverkehrsstraße zweckmäßig; das verhindert unerwünschte Quartiersdurchfahrten.

Warteplätze statt Suchverkehr sind sinnvoll; dazu muß das Freiwerden eines Stellplatzes absehbar sein - deshalb wird eine Mindestgröße der Anlage von etwa 100 Pkw vorgeschlagen. Die Maximalgröße ergibt sich aus der Verträglichkeit der Übergabestationen im öffentlichen Straßenraum - dazu wird die Höchstgrenze von etwa 500 Pkw vorgeschlagen. Hierfür könnte eine Station mit drei Übergabeplätzen bei höchster Leistungsfähigkeit gerade noch ausreichen; die begrenzten städtischen Straßennetze würden noch konzentriertere Spitzenbelastungen meist ohnehin nicht aufnehmen können. Dazu gehört auch ein Parkierungskonzept, das weitgehend den Kurzparkern die Straße überläßt und den Sammelgaragen die Dauerparker zuweist.

Fläche sparen - vor allem im Erdgeschoß

Abwägung und Vergleich mit rentierlicher Geschoßfläche führen in  hochwertigen Stadtlagen zur Beschränkung des Parkens auf unterirdische Geschosse. Oberirdisch kommen allenfalls innere, unbelichtete Gebäudeteile in Frage, die zusätzliche Kubatur bedeuten, aber keine echten städtischen Gebäudefunktionen verhindern. Dabei wird leicht nachvollziehbar, daß technischer Aufwand für hochkompakte Lagerung meist gerechtfertigt ist. Im Erdgeschoß (und in Spitzenlagen auch im 1.OG) sollten fast "um jeden Preis" monofunktionale, rein parkhausbezogene Flächen minimiert werden. Auch hier zeigt ein Vergleich üblicher Mietniveaus gut die Relationen, z.B. im Keller 5 DM/qm, in den Obergeschossen 15 DM/qm, und im Erdgeschoß 50 DM/qm.

Die geforderte Flächeneinsparung im Erdgeschoß ist nur dann möglich, wenn Aufzug und Übergabeplatz identisch sind und der Übergabeplatz ausschließlich der schnellen Fahrzeugübergabe dient. Maßkontrolle und Magnetkartenabwicklung, Aus- und Einladen, Zu- und Aussteigen von Begleitpersonen muß nicht den zeitlich-räumlichen Engpaß "Übergabeplatz/ Aufzug" belasten; Warteplätze und die notwendige Fläche für Vor- und Nachabfertigung können in die öffentlichen Gehwegflächen integriert werden, ohne Fußgänger in unzumutbarer Weise zu beeinträchtigen. Die automatische Lösung verspielt die Hälfte ihres Vorteils, wenn sie im Vergleich zur Rampeneinfahrt nicht drastisch Erdgeschoßfläche spart - also freihält für andere Nutzungen.

Einsteigen und Abfertigen in städtischer Öffentlichkeit

Der zweite große Vorteil automatischer Parkierungsanlagen ist die Sicherheit von Fahrzeug und Fahrer(in!) vor Vandalismus und Kriminalität. Er wird freilich nur dann wirksam, wenn die gesamte Übergabe im belebten öffentlichen Straßenraum stattfindet oder von dort aus einsehbar ist, ohne Öd- und Angsträume.

Das heißt, daß die Übergabestation in enger Nachbarschaft zu anderen städtischen Nutzungen - Läden, Hauseingängen, etc. - angeordnet werden sollte. Insgesamt wird die Umgebung und Gestaltung des Übergaberaums die Akzeptanz der Garage maßgeblich beeinflussen; er sollte, beispielsweise ähnlich einem automatischen Bankschalter, zum öffentlichen Raum hin verglast werden.

Die Vor- und Nachabfertigung belastet die - generell eher großzügig zu bemessenden - öffentlichen Gehwegflächen nicht über den zulässigen Gemeingebrauch hinaus. Im Gegenteil, sie sind Teil des Stadtlebens, das ähnlich wie die Zuwege zu den Übergabeplätzen, seinerseits Öffentlichkeit herstellt und bereichert - was die herkömmliche Tiefgarage nicht tut. Dazu darf die Fläche für Vor- und Nachabfertigung nicht übergroß sein. Eine Station mit drei, vielleicht maximal vier Übergabeplätzen und gemeinsamen Warte- und Abfertigungsmöglichkeiten werden hier als Obergrenze vorgeschlagen. 

Technische Verbesserungen notwendig

Die dargestellten städtbaulichen Forderungen implizieren nicht nur städtbauliche Maßnahmen, sondern auch technische Anpassungen der Systeme. Während die vorhandenen Systeme durchaus brauchbare Einzelbereitstellungszeiten (Bereitstellungszeit pro Pkw) bieten, wird heute oft die ungünstige kumulierte Abfertigungszeit (entspricht der Ein- bzw. Ausgabefrequenz der Übergabeplätze bzw. der bereitgestellten Pkw pro Zeit) durch mehr Übergabeplätze ausgeglichen; mit städtebaulich und finanziell fatalem Flächenverbrauch im Erdgeschoß. Es bedarf deshalb einer für das Erdgeschoß extrem flächen- bzw. zeitsparenden Technik

  • mit gleichzeitiger Bereitstellung von Folgefahrzeugen im Inneren der Anlage bis unmittelbar über oder unter den Übergabeplatz,
  • ohne zusätzliche Bereitstellungsflächen im Erdgeschoß - d.h. der Übergabeplatz ist Teil des vertikalen Transportsystems (Aufzugs) und
  • mit allerkürzester Übergabe auf wenigen, kleinen, wechselnd benutzbaren Übergabeplätzen

    Während bisherige Anlagen Ausgabefrequenzen von einem Pkw je 3 Minuten haben scheint hier eine durchschnittliche Ausgabefrequenz von einem Pkw je 50 Sekunden möglich, wie folgendes Beispiel zeigt : Tor öffnen 3 Sekunden + Einsteigen 20 Sekunden + Herausfahren 4 Sekunden + Tor schließen 3 Sekunden + Palettenlagerung und Zuförderung des unmittelbar darüber oder darunter bereitgestellten Folgefahrzeugs 20 Sekunden. Eine zwischenzeitliche Einfahrt zwischen zwei Ausgaben erfordert dann nur 24 Sekunden zusätzlich.

    Die Bereitstellung von Folgefahrzeugen scheint derzeit besonders gut durch eine Kombination des Prinzips "Verschiebepuzzle" mit einem davon unabhängigem vertikalem Transportmechanismus  lösbar (siehe Abb.1): Die Bewegungen sind stockwerksweise unabhängig; notwendige Wende- und Bereitstellungsvorgänge können in beliebigen Zeitlücken in jedem Stockwerk stattfinden. Außerdem erlaubt das System eine besonders effiziente Raumausnutzung und ist gut an unterschiedliche Grundrißsituationen anpassbar. Besonders kurze Einzelbereitstellungszeiten in Perioden geringerer Auslastung verknüpfen sich mit der Möglichkeit von Überlastungen unter Inkaufnahme längerer Einzelzugriffszeiten.

    Abb.1: Höchste Flächeneinsparung durch Prinzip Verschiebepuzzle 

    Zuverlässige, schnelle, leise und unaufwendige Antriebe scheinen möglich und auch schon erprobt. In der Vertikalen erfordert die gleichzeitige Übergabe und Bereitstellung Entwicklungsarbeit: Sind Parkebenen oberhalb und unterhalb der Übergabeebene vorhanden, kann im Aufzugsschacht oben und unten gleichzeitig gefördert werden. Sonst ist wahrscheinlich ein zusätzlicher Bereitstellungsaufzug zweckmäßig. Hier sind Weiterentwicklungen in der Höhenfördertechnik notwendig.

    Je nach Größe der Anlage können Höhenstaffelungen der Stockwerke für Kfz unterschiedlicher Höhe und auch Längen- oder Breitenstaffelungen zu weiteren Kubaturoptimierungen genutzt werden.

    Kaum begrenzt sind die Möglichkeiten von Programmierung und Telematikeinsatz: von der Optimierung der Zugriffszeiten, über hochdifferenzierte Preis- und Inkassomodelle, Wartezeitanzeigen, bis zur Vorab-Bestellung über ISDN/ GSM, CITY Ruf und andere Systeme.

    Beispiele unter Freiflächen und innerhalb von Gebäuden

    Für die Hauptforderungen der Stadtplanung - Kompaktheit und Öffentlichkeit - werden zwei exemplarische Lösungen dargestellt. Abb.2 zeigt einen unterirdischen Container, wie er unter vielen unbebauten Stadtflächen (Grünflächen, Straßen, Plätzen, Schulhöfen, etc.) auch in bestehenden Baugebieten nachträglich eingebaut werden könnte - am besten von freien Bauträger- und Betreibergesellschaften. Die Oberflächennutzungen, Leitungen und Bepflanzungen werden kaum eingeschränkt. Sogar ein Kanal, der ein einzelnes Geschoß am Rand verkleinert, wäre kein Hindernis.

    Abb. 2: Parkautomat unter Straße und Grünfläche im Bestand 

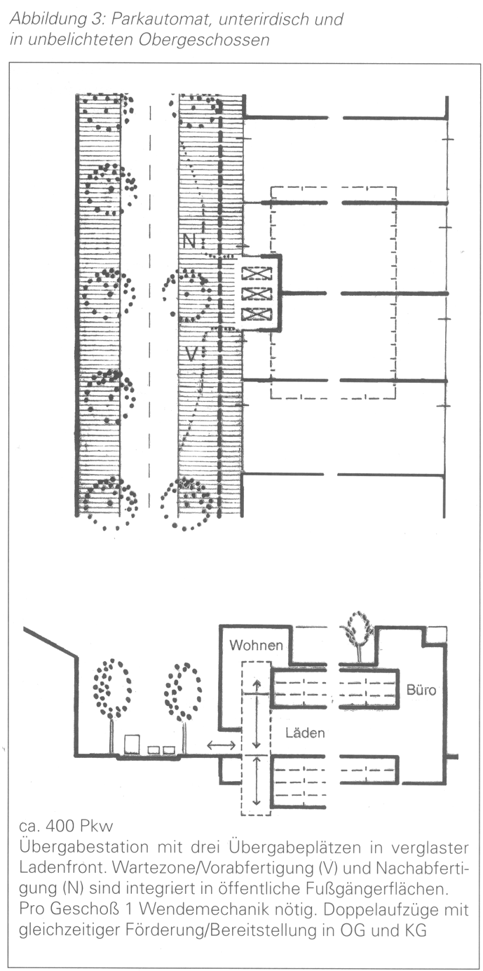
     Abb.3 zeigt eine doppelt so große Anlage, verteilt auf einen unterirdischen Teil und einen Teil oberhalb des 1.OG, so daß keine Ladenflächen und belichteten Geschoßflächen verloren gehen. Die Übergabestationen sind zusammengelegt, weil sie so flexibel wechselnd alle zum Ein- oder Ausfahren genutzt werden können. Spitzennachfragen können so besser gepuffert werden. Ein derartiges Vorhaben eignet sich eher für Neubaugebiete, aber auch für größere Bauvorhaben und Reurbanisierungen, z.B. Bahn-, Industrie- oder Kasernenkonversionen.

     

     Mit diesen Beispielen ist weder das Spektrum der technischen Möglichkeiten noch der städtebaulichen Einbindung ausgeschöpft. Aber sie deuten an, daß lokal angepaßte integrative Lösungen möglich sind, wenn sich die Technik nicht verselbständigt.

    Städtische Handlungsprogramme auf vielen Gebieten

    Wenn eine Großstadt mit 300.000 Einwohnern ein zehnjähriges Programm startet "30.000 Bäume, 30.000 Tiefgaragenplätze", so hat dies positive Wirkungen auf viele Bereiche: Wirtschaftsförderung durch Aktivierung von 1,5 Mrd. DM Privatkapital, Technologieförderung durch Marktführung für exportfähige Hochtechnologieprodukte, Stadtentwicklung durch Umfeldverbesserung und Binnenverdichtung, Verkehrsökologie durch Nahbereichsförderung, Sozialpolitik durch Abbau von Autoverkehrskosten von Nicht- und Wenig-Autonutzern. Schließlich verdient die Stadt - und zwar an den verbleibenden Straßenparkplätzen; die Größenordnung sei mit 5000 P x 2000 DM p.a. = 100 Mio. DM p.a. angedacht - also weit mehr als "peanuts".

     Die Anstrengung in Bauleitplanung und Management scheint also angesichts der geringen Anlaufkosten höchst sinnvoll; denn die eigentlichen Investitions- und Betriebskosten unterirdischer Anlagen müssen natürlich von den Nutzern bezahlt werden. Die Beispiele haben gezeigt, daß die Hauptfehler heutiger automatischer Sammelgaragen vermeidbar sind: zu großzügiger Umgang mit oberirdischem Baurecht und Übertechnisierung der Erdgeschoß-Flächen. Rechnet man diese Faktoren in Geld um, dann wird die Verwendung von Automatik und Mechanik plötzlich höchst aktuell.